1、找到我们的现场量尺图

2、在CAD中根据尺寸画出来

3、然后把平面布局做好了

4、下面先来把冰箱柜这边的地柜吊柜立面图画出来

5、然后再来把水盆柜这边的地柜吊柜立面图画出来

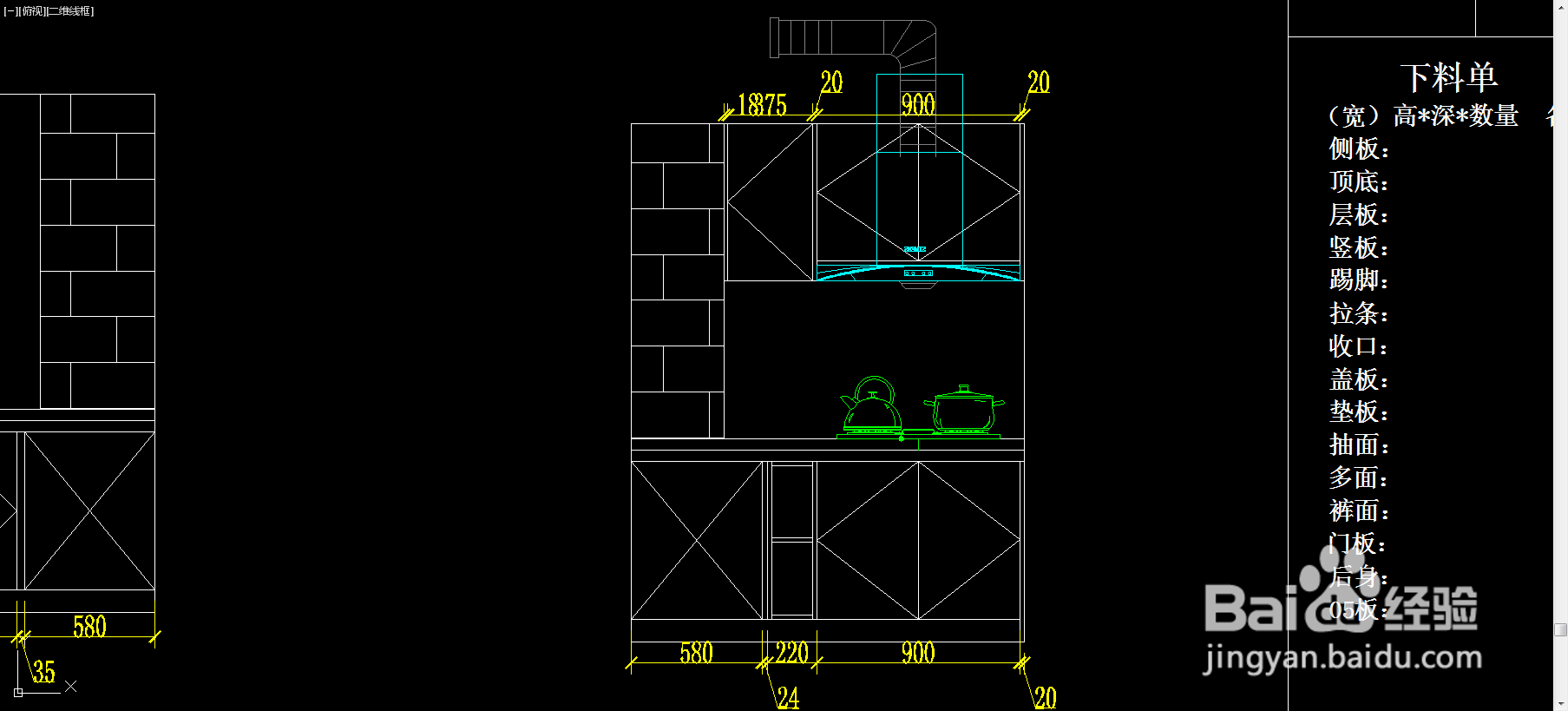
6、最后再来把烟机柜这边的地柜吊柜立面图画出来

7、这样整体的平面立面图我们就画好了

8、接下来我们再把各个位置的插座画上就好了

时间:2026-02-15 11:44:11
1、找到我们的现场量尺图

2、在CAD中根据尺寸画出来

3、然后把平面布局做好了

4、下面先来把冰箱柜这边的地柜吊柜立面图画出来

5、然后再来把水盆柜这边的地柜吊柜立面图画出来

6、最后再来把烟机柜这边的地柜吊柜立面图画出来

7、这样整体的平面立面图我们就画好了

8、接下来我们再把各个位置的插座画上就好了
