1、第一步:使用构造线、偏移、修剪,以及多线及多线编辑命令绘制宿舍平面图墙线。

2、第二步:执行矩形、分解、直线、圆弧等命令绘制宿舍平面图中的窗户及门,并使用复制及镜面命令完成其余门窗的绘制。

3、第三步:使用直线、矩形、阵列等命令完成宿舍楼平面楼梯、卫生间物体的绘制,并使用文字标注命令对图形进行说明。

4、第四步:执行线性标注、连续标注对宿舍平面进行尺寸标注,并使用直线、圆、文字标注,以及复制等命令对轴号进行标注。

时间:2026-05-02 16:15:47
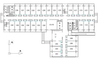
1、第一步:使用构造线、偏移、修剪,以及多线及多线编辑命令绘制宿舍平面图墙线。

2、第二步:执行矩形、分解、直线、圆弧等命令绘制宿舍平面图中的窗户及门,并使用复制及镜面命令完成其余门窗的绘制。

3、第三步:使用直线、矩形、阵列等命令完成宿舍楼平面楼梯、卫生间物体的绘制,并使用文字标注命令对图形进行说明。

4、第四步:执行线性标注、连续标注对宿舍平面进行尺寸标注,并使用直线、圆、文字标注,以及复制等命令对轴号进行标注。
